Kontorer i Grefsenveien

Kontorer i Grefsenveien

Bilde
Siktlinje fra inngangsparti
Romdeleren sørger for at kontorplassene er skjermet fra inngangen, men er transparente nok for å ivareta lysinnslippet

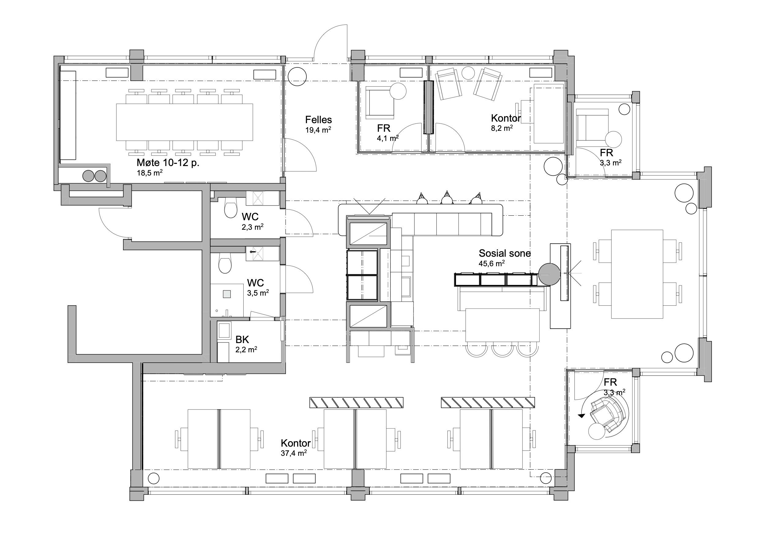
Oppdragsgiver flyttet fra cellekontorer med få fellesarealer, med mål om funksjonelle, arealeffektive lokaler av høy kvalitet. Samtidig med totalrehabilitering av interiøret ble fasadene oppgradert med gulv-til-tak-vinduer. Dette gjorde cellekontorer lite egnet, og løsningen ble kontorlandskap. Plassbygde romdelere og tekstilskjermer gir arbeidsplassene en privat følelse, samtidig som dagslys og romfølelse bevares. Løsningen frigjorde også store fellesarealer for samhandling.

Konseptet er tidløst med robuste materialer og fokus på lang levetid. Treverk går igjen i paneler, møbler og spesialdesignet innredning, med en dynamikk mellom lys og røkt eik. Terrazzo og teppe definerer soner, mens belysning i spesialfargen kaffebrun gir et raffinert uttrykk. Åpen himling med synlige tekniske føringer fremhever de nye fasadene.Prosjektet er utviklet med en «compact living»-tilnærming, hvor hver kvadratmeter er nøye utnyttet.